Instapklare, semi bungalow met houten berging en overkapping, gelegen in plan Suytkade, nabij het NS-station en de Helmondse binnenstad. De bungalow is gebouwd in 2012, is uitstekend onderhouden en heeft een definitief energielabel A+. Met een slaap- en badkamer op de begane grond is woning levensloop bestendig.
BIJZONDERHEDEN
* Formeel dient er parkeergelegenheid op eigen terrein aangelegd te blijven
* Geheel voorzien van kunststof kozijnen met HR++ glas
* 14 zonnepanelen (2016)
* Airconditioning (2022)
* Definitief label A+
INDELING
U ...
Instapklare, semi bungalow met houten berging en overkapping, gelegen in plan Suytkade, nabij het NS-station en de Helmondse binnenstad. De bungalow is gebouwd in 2012, is uitstekend onderhouden en heeft een definitief energielabel A+. Met een slaap- en badkamer op de begane grond is woning levensloop bestendig.
BIJZONDERHEDEN
* Formeel dient er parkeergelegenheid op eigen terrein aangelegd te blijven
* Geheel voorzien van kunststof kozijnen met HR++ glas
* 14 zonnepanelen (2016)
* Airconditioning (2022)
* Definitief label A+
INDELING
U komt binnen in de hal met de toiletruimte. De hal is afgewerkt met een gietvloer met vloerverwarming die doorloopt over de gehele begane grond. Vanuit de hal is de woonkamer bereikbaar.
Toilet:
Het toilet is volledig betegeld en voorzien van een wandcloset en fonteintje.
Woonkamer:
De woonkamer is gelegen aan de achterzijde en is voorzien van dubbele openslaande kunststof deuren naar de patio tuin en de trapopgang naar de verdieping. De woonkamer is afgewerkt met deels behangen, deels stucwerk wanden en spuitwerk plafond. Verder geeft de woonkamer toegang tot een gang waaraan een slaapkamer, wasruimte en badkamer zijn gelegen.
Leefkeuken:
De keuken is gelegen aan de voorzijde van de woning. Het moderne meubel is geplaatst in een U-opstelling en voorzien van een kunststof werkblad met spoelbak. De keuken is verder uitgerust met de volgende inbouwapparatuur: 5-pits gaskookplaat, afzuigkap, koelkast, vaatwasser, stoomoven, inbouw koffiemachine en 2 warmhoud lades.
In de keuken bevindt zich de technische ruimte met de opstelling van de c.v.-combiketel, de unit mechanische ventilatie, omvormer van de zonnepanelen en de groepenkast (8 groepen met 3 aardlekschakelaars). Verder is de keuken nog uitgerust met een tweetal praktische (berg)kasten.
Slaapkamer:
De slaapkamer met een afmeting van ca. 3.00 x 4.65 is voorzien van een inbouwkast en geeft toegang tot de patiotuin.
Badkamer I:
De badkamer is volledig betegeld en uitgerust met een inloopdouche met thermostaatkraan, wastafel in meubel en wandcloset.
Patiotuin:
De onderhoudsvrije patiotuin is aangelegd met bestrating, beplanting en een vlonderterras met overkapping en aansluitend een houten berging.
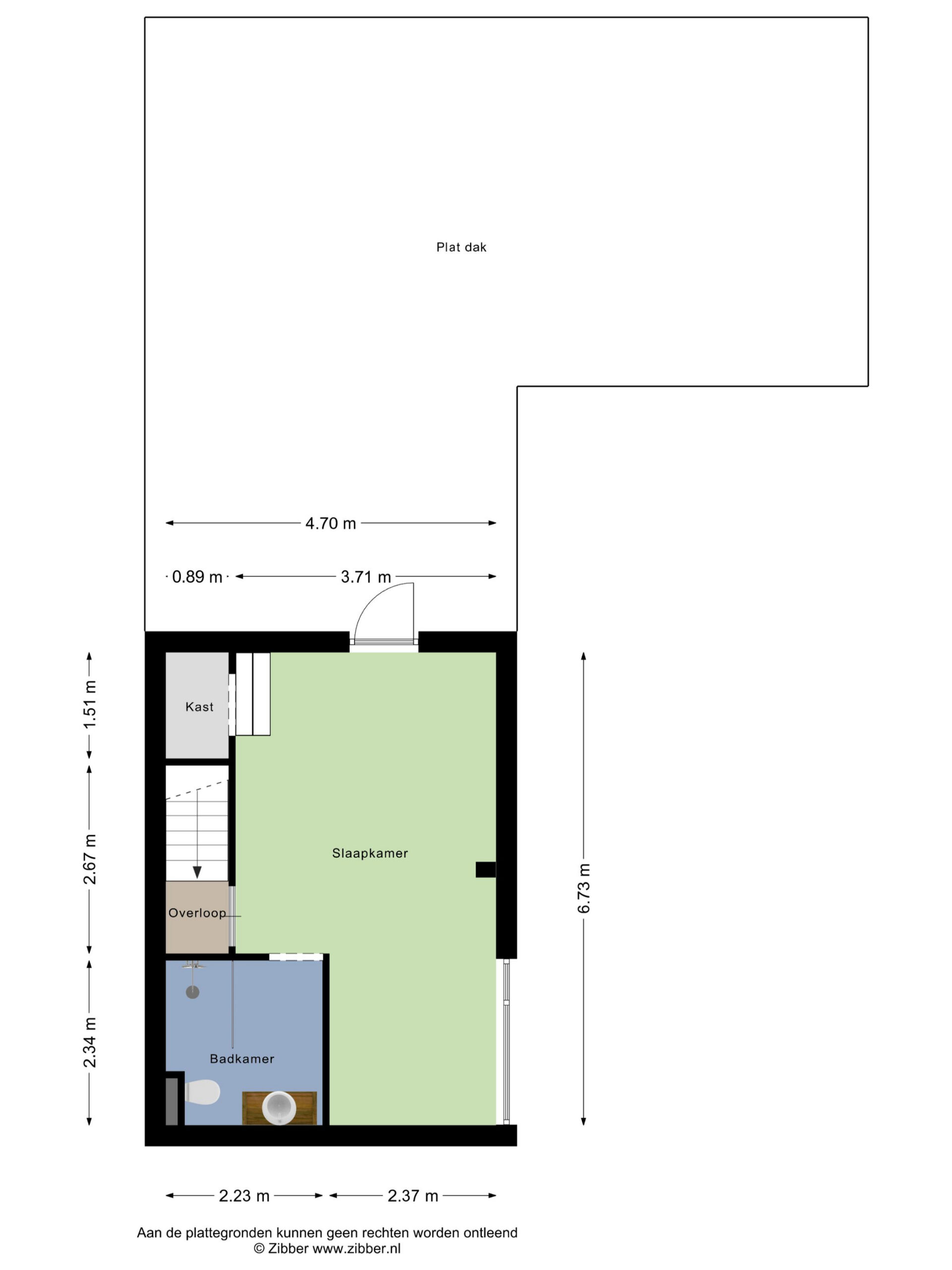
EERSTE VERDIEPING
De overloop is eveneens afgewerkt met een gietvloer met vloerverwarming die doorloopt naar de slaapkamer. De overloop biedt toegang tot een slaapkamer en 2e badkamer.
Slaapkamers:
De riante slaapkamer met een afmeting van ca. 2.37-3.71 x 6.73 is voorzien van een inbouwkast en geniet veel lichtinval door de grote raampartijen. Het grote raam met uitzicht op de patiotuin is voorzien van een elektrisch bedienbaar screen.
Badkamer II:
De badkamer is deels betegeld en uitgerust met een inloopdouche met thermostaatkraan, wastafel in meubel en wandcloset.
AANVULLENDE BIJZONDERHEDEN
- Er wordt van de koper een waarborgsom of bankgarantie verlangd ter grootte van 10% van de koopsom
- De plattegronden dienen er uitsluitend voor om u een indruk te geven van de indeling
- Partijen zijn pas gebonden als er een schriftelijke koopovereenkomst is getekend
- Deze woning is door een professioneel bureau volgens de NEN 2580 norm ingemeten. Ondanks dat de inmeting met de grootste zorgvuldigheid is uitgevoerd kunnen wij hieromtrent geen enkele vorm van aansprakelijkheid aanvaarden