BEZICHTIGEN
VRAAG UW BEZICHTIGING AAN VIA DE FUNDA SITE!
U ONTVANGT DAN AUTOMATISCH EEN LINK OM DE BEZICHTIGING ZELF ONLINE IN TE PLANNEN EN OOK WORDT HET MOVE DOSSIER DAN AUTOMATISCH GEKOPPELD.
ALGEMEEN
Aan een rustige woonstraat, in een kindvriendelijke omgeving, in de wijk "Rijpelberg" gelegen, instapklare twee-onder-een-kapwoning met carport, berging en overkapping.
Deze woning is aan de achterzijde over de volle breedte uitgebouwd, heeft een woonoppervlakte van 132m² en bevindt zich op een ruim perceel van 231m². De woning is gebo...
BEZICHTIGEN
VRAAG UW BEZICHTIGING AAN VIA DE FUNDA SITE!
U ONTVANGT DAN AUTOMATISCH EEN LINK OM DE BEZICHTIGING ZELF ONLINE IN TE PLANNEN EN OOK WORDT HET MOVE DOSSIER DAN AUTOMATISCH GEKOPPELD.
ALGEMEEN
Aan een rustige woonstraat, in een kindvriendelijke omgeving, in de wijk "Rijpelberg" gelegen, instapklare twee-onder-een-kapwoning met carport, berging en overkapping.
Deze woning is aan de achterzijde over de volle breedte uitgebouwd, heeft een woonoppervlakte van 132m² en bevindt zich op een ruim perceel van 231m². De woning is gebouwd in 1997 en heeft een energielabel A.
De woning is goed bereikbaar met veel faciliteiten in de buurt. Gelegen op steenworp afstand van de bossen en recreatieplas Berkendonk, loopafstand van een basisschool, kinderopvang en supermarkt en op fietsafstand van het centrum van Helmond en het NS station.
Verder is de eerste uitvalsweg in de nabije omgeving op slechts 10 minuten rijden.
BIJZONDERHEDEN
* Schuttingen vernieuwd in 2024
* Vernieuwde badkamer, toilet en keuken in 2022
* De platte daken zijn vernieuwd in 2022
* Schilderwerk buiten 2022
* Unit stadsverwarming is vervangen in 2018
* Airconditioning op de 1e en 2e verdieping
* De begane grond en badkamer zijn voorzien van vloerverwarming
* Deels voorzien van rolluiken en horren
* De dakkapel op de zolder is voorzien van kunststof kozijnen met draai-/ kiepramen
* Praktische bergruimte achter de knieschotten
* Separate wasruimte op de 2e verdieping
* Energielabel A
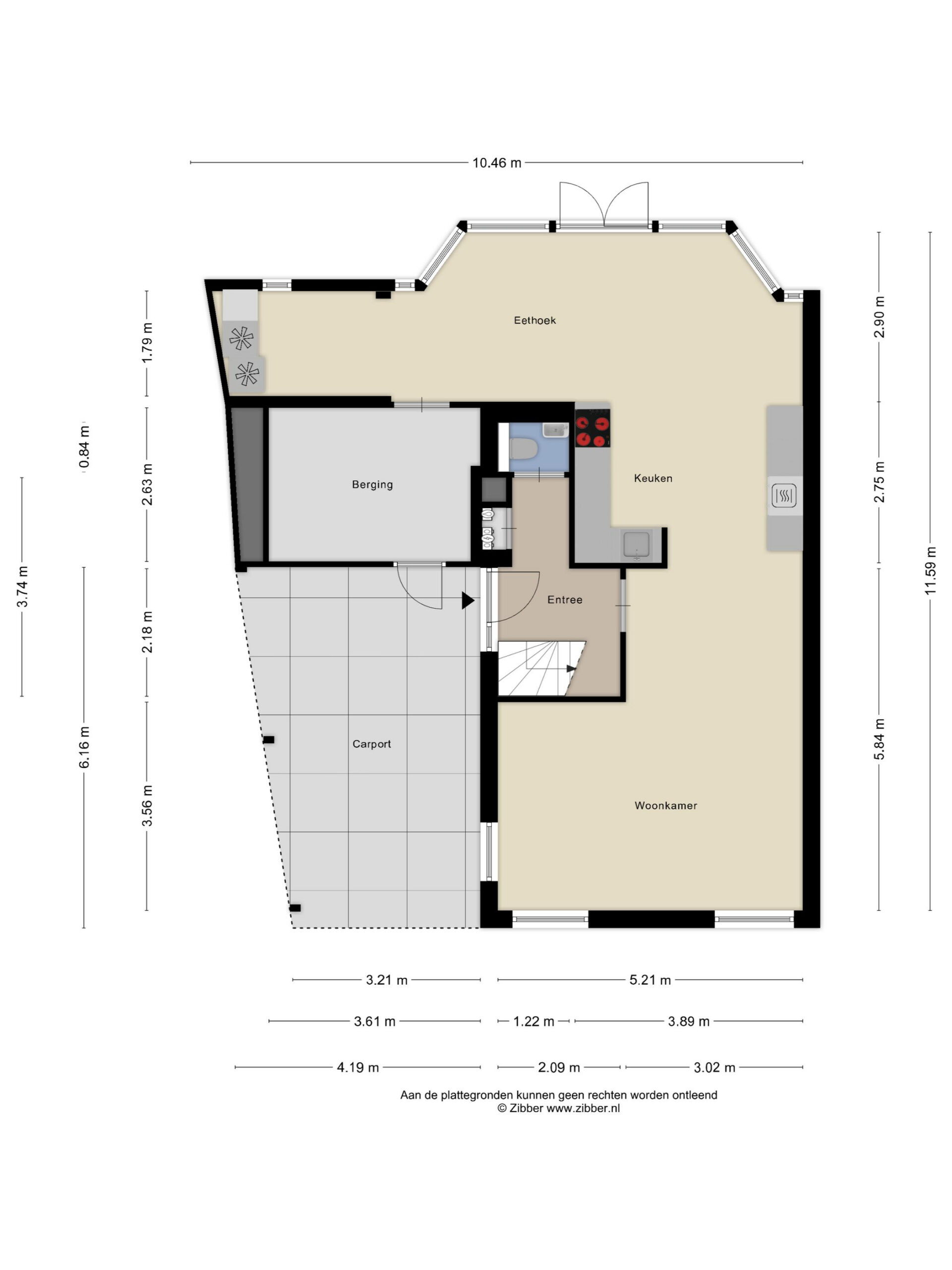
INDELING
U komt via de carport binnen in de hal. In de hal treft u de meterkast, een kast met de unit stadsverwarming, de toiletruimte en de trapopgang naar de verdieping. De hal is afgewerkt met een tegelvloer voorzien van vloerverwarming die doorloopt over de gehele begane grond. Vanuit de hal is de woonkamer bereikbaar.
Toilet (2022)
Het toilet is volledig betegeld en voorzien van een wandcloset en fonteintje.
Woonkamer
De L-vormige woonkamer is gesitueerd aan de voorzijde van de woning en staat in open verbinding met de keuken.
Woonkeuken (2022)
Het moderne meubel is voorzien van een Dekton werkblad met spoelbak en de kastjes zijn voorzien van een nano-coating. De keuken is uitgerust met de volgende inbouwapparatuur: ATAG inductie kookplaat met interne afzuiging, ATAG koelkast, ATAG vaatwasser, ATAG combi-oven en een Quooker.
Vanuit de keuken is de aanpandige berging bereikbaar.
Tuin
De onderhoudsvriendelijke achtertuin is voorzien van bestrating, kunstgras en een overkapping. Aan de voorzijde van de woning bevindt zich tevens nog een carport.
EERSTE VERDIEPING
Overloop
De overloop is afgewerkt met een laminaatvloer die doorloopt over de gehele verdieping en geeft toegang tot drie slaapkamers en de badkamer.
Slaapkamers
Slaapkamer I (ca. 2.41-1.64 x 5.21) is gelegen aan de achterzijde;
Slaapkamer II (ca. 3.57 x 2.54) is gelegen aan de voorzijde;
Slaapkamer III (ca. 3.57 x 2.57) is eveneens gelegen aan de voorzijde.
Alle slaapkamers zijn afgewerkt met een laminaatvloer, stucwerk wanden en stucwerk plafond.
Badkamer (2022)
De badkamer is volledig betegeld en uitgerust met een ruime inloopdouche met rain shower, handdouche en thermostaatkraan, dubbele wastafel in meubel met spiegelkast, wandcloset en design radiator. In de badkamer is tevens vloerverwarming aanwezig.
TWEEDE VERDIEPING
Voorzolder
Via een vaste trap bereikt u de voorzolder met praktische bergruimte in de knieschotten. De voorzolder, voorzien van airconditioning, geeft toegang tot de wasruimte en de zolder-/ slaapkamer.
Wasruimte
Hier bevinden zich de unit mechanische ventilatie en de aansluitingen van de wasapparatuur.
Zolder-/ slaapkamer
Slaapkamer IV is voorzien van airconditioning, een dakkapel aan de achterzijde en bergruimte in de knieschotten.
AANVULLENDE BIJZONDERHEDEN
- Er wordt van de koper een waarborgsom of bankgarantie verlangd ter grootte van 10% van de koopsom
- De plattegronden dienen er uitsluitend voor om u een indruk te geven van de indeling
- Partijen zijn pas gebonden als er een schriftelijke koopovereenkomst is getekend
- Deze woning is door een professioneel bureau volgens de NEN 2580 norm ingemeten. Ondanks dat de inmeting met de grootste zorgvuldigheid is uitgevoerd kunnen wij hieromtrent geen enkele vorm van aansprakelijkheid aanvaarden